Kimbeko (DRC): draag uw steent(je) bij het nieuwe gezondheidscentrum
Om de inwoners van Kimbeko en de omliggende dorpen (in de gezondheidszone Kasongo-Lunda in de DR Congo) toegang te geven tot kwaliteitsvolle gezondheidszorg wilt Memisa een nieuw gezondheidscentrum bouwen.
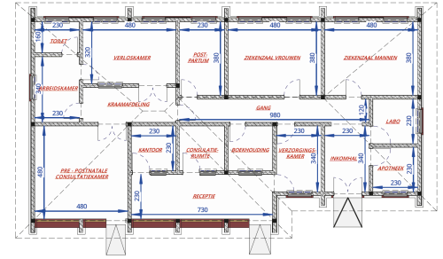
Van een klein gezondheidspostje in leem en stro…naar een goed gebouwd en degelijk
uitgerust gezondheidscentrum
Dr. Eric Lulendo van Memisa bezocht begin september Kimbeko: “Het raakt me diep om te zien in welke moeilijke omstandigheden patiënten in Kimbeko vandaag verzorgd worden. De huidige, kleine gezondheidspost, opgetrokken uit leem en stro, is niet bestand tegen regen, koude, hitte of stof. Voor de duizenden inwoners van Kimbeko en omliggende dorpen is de bouw van een degelijk gezondheidscentrum in duurzame materialen, uitgerust met aangepast medisch materiaal, echt heel dringend.”
De inwoners van Kimbeko hebben de eerste fundamenten al gelegd!
“Ik geef zelf het goede voorbeeld en motiveer de gemeenschap om de stenen van de rivier naar het gezondheidscentrum te brengen. Deze stenen zullen gebruikt worden
voor de bouw van het nieuwe centrum”, vertelt de dorpschef van Kimbeko.
Judith is in blijde verwachting van haar eerste kindje. Ze kijkt uit naar de bouw van het nieuwe gezondheidscentrum. ”Ik wil de eerste vrouw zijn die bevalt in het nieuwe gezondheidscentrum van Kimbeko!
Dit nieuwe gebouw zal ook bijdragen aan de ontwikkeling van ons dorp. De inwoners van Kimbeko en de omliggende dorpen zullen in veilige en hygiënische omstandigheden kunnen worden verzorgd.”
VOOR DE REALISATIE VAN DIT PROJECT IS € 72.860 NODIG
Om dit project te realiseren, hebben we dringend uw steun nodig!
Naast het budget dat nodig is voor de bouw van het nieuwe gezondheidscentrum, moeten we ook de aankoop financieren van medisch materiaal (consultatietafels, bedden en matrassen, bloeddrukmeters, klein gynaecologisch materiaal, etc.), dat momenteel ontbreekt.
Samen kunnen we de kwaliteit van de gezondheidszorg verbeteren zodat
alle inwoners van Kimbeko de zorg krijgen waar ze recht op hebben!
